当前栏目:隔离开关
联系电话:13970077772
公司地址:江西省南昌高新技术开发区天祥北大道699号中节能江西低碳园
产品概述:
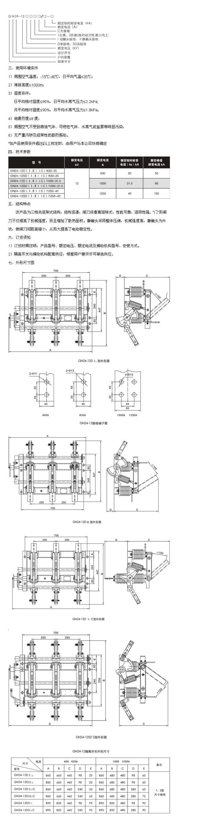
GN24-12户内交流高压隔离开关是一种用于高压电力配电系统中的设备,主要用于隔离和切断负载电路、母线及变压器等设备。该产品安装在室内,可根据不同需要选择手动或机械操作方式,具有结构紧凑、操控灵活、使用方便等特点。GN24-12户内交流高压隔离开关的技术参数包括:额定电压为12kV,额定电流为400A、630A、1250A,额定短...
GN24-12户内交流高压隔离开关是一种用于高压电力配电系统中的设备,主要用于隔离和切断负载电路、母线及变压器等设备。该产品安装在室内,可根据不同需要选择手动或机械操作方式,具有结构紧凑、操控灵活、使用方便等特点。
GN24-12户内交流高压隔离开关的技术参数包括:额定电压为12kV,额定电流为400A、630A、1250A,额定短时耐受电流为20kA,机械寿命达到10000次以上,可以在固定时间内自动断开电路。
这款产品的应用范围广泛,适用于各种高压配电系统中,如城市电网、化工、冶金、石油等行业的输配电系统。此外,这个产品还经常用于发电厂、变电站、隧道等场所。
在使用GN24-12户内交流高压隔离开关时,需要注意以下事项:必须按照说明书正确接线,严禁超负荷使用;不得在带电状态下进行维修,应注意防止触电事故;避免受潮和长时间贮存,以免影响性能。在安装和维护时,应按照相关标准进行操作,确保产品的安全性和稳定性。此外,在使用过程中还需注意防止过电压、过流等情况的发生,并做好相应的保护措施。同时,还要注意保持产品干燥清洁,以延长其使用寿命。
